2015:430 - CLAUDY: Glenshane Quarry (Clagan) (2015 phase), Derry
County: Derry
Site name: CLAUDY: Glenshane Quarry (Clagan) (2015 phase)
Sites and Monuments Record No.: N/A
Licence number: AE/15/051
Author: Sarah Nicol, NAC
Author/Organisation Address: Farset Enterprise Park, 638 Springfield Road, Belfast, BT12 7DY
Site type: Habitation site
Period/Dating: Bronze Age (2200 BC-801 BC)
ITM: E 658339m, N 905459m
Latitude, Longitude (decimal degrees): 54.893496, -7.090600
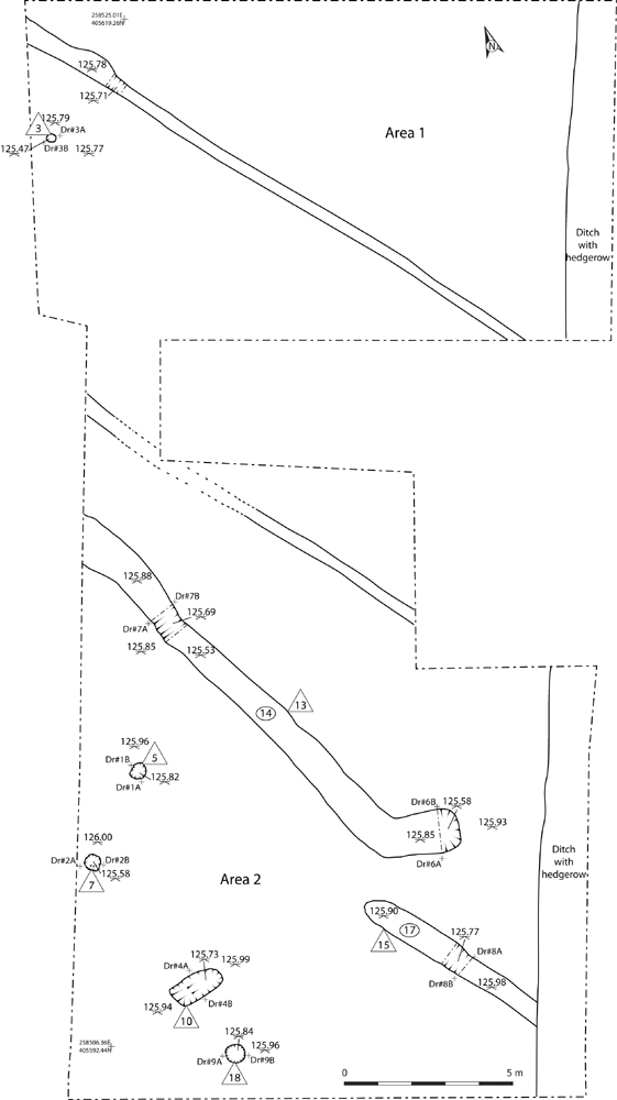
Excavation was carried out at the Glenshane Road Quarry on 23 and 24 March 2015. Due to the possible existence of 19th-century building foundations on part of the site (Area 1) a full topsoil strip of Area 1 was undertaken; no building remains were found. On the western side of the area a small cremation pit [C3] was uncovered which contained a large amount of burnt bone. A radiocarbon date obtained from charcoal gave a date of Cal BC 1430 to 1280 (Cal BP 3380 to 3230).
Area 2 contained features associated with two periods of use, Bronze Age and post-medieval. The post-medieval phase consisted of a pair of linear features [C13 and C15], which may be the remains of the enclosure on the 1857 OS map associated with the farm building discussed above, of which there were no remains. The Bronze Age was represented by a series of features, the two pits [C5] and [C10], a hearth [C18] and a post-hole [C7]. The hearth contained a pebble, which had been used possibly as a sharpening stone (Find No. 18), and one of the pits contained flint and pottery indicative of a domestic site. These features were located on the western side of Area 2 indicating a high likelihood of features continuing to the west.
The current area for development has been cleared and no further works are needed at this stage. The archaeological potential to the west of the area investigated is very high, the next phase of work will commence at the request of the client.
