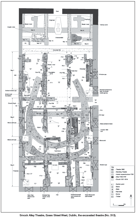
2009:313 - DUBLIN: Smock Alley Theatre, Essex Street West, Dublin
County: Dublin
Site name: DUBLIN: Smock Alley Theatre, Essex Street West
Sites and Monuments Record No.: DU018–020
Licence number: 06E1073 ext.
Author: Linzi Simpson, Margaret Gowen & Co. Ltd.
Author/Organisation Address: 27 Merrion Square, Dublin 2
Site type: Theatre and Church
Period/Dating: Post Medieval (AD 1600-AD 1750)
ITM: E 715252m, N 734116m
Latitude, Longitude (decimal degrees): 53.344704, -6.269135
Excavation took place within the deconsecrated church of SS Michael and John in Temple Bar West. The site was known to be of architectural and archaeological importance, as it was formerly the location of the Smock Alley Theatre, 1662–1788. The theatre had a vibrant and colourful history and was the most important theatre in Dublin, holding the title of Theatre Royal for most of the period of its existence. When it closed down in 1788, it was converted into a warehouse until the early 19th century, when it was purchased as a site for a Catholic church dedicated to St Michael and St John. This church, built by the parishioners before Catholic Emancipation, was a historic monument and lavishly decorated internally. In the mid-1990s the church formed part of a complex of buildings which were being redeveloped as part of the Temple Bar rejuvenation scheme, the church having been previously deconsecrated. During this time, survey work on the church building by the writer revealed that the entire structure was actually the Smock Alley Theatre, from basement to roof level (Simpson 1996). The stripping of church plaster, both externally and internally, exposed what turned out to be earlier windows, doors, and fireplaces, which could only have been associated with the Smock Alley theatre. Thus, although the theatre was reputedly demolished in the early 19th century to make way for the church, the theatre building was substantially retained, which explained the curious anomaly of the north–south rather than east–west orientation. The works involved blocking up the windows and doors, removing the roof, inserting a fine plaster ceiling and replacing the original theatre roof and parapet back in position. At basement level a series of three brick burial vaults were built running the length of the building.
The church is again undergoing redevelopment but this time it is being converted back into the Smock Alley Theatre, coming full circle in its evolution. This programme of works involved reducing the existing interior floor level by 0.6m and this area was tested to establish the depth of the potential foundations in the interior. A series of walls were located during this investigation, which was followed by a full excavation to the required depth. The upper levels of the walls were exposed and recorded and most were found to lie beneath the required depth. The entire footprint was then backfilled with terram and stone and a temporary concrete floor was laid.
The excavation has significantly advanced our knowledge and understanding of the building sequence of the Smock Alley Theatre. The theatre was founded in 1662 by John Ogilby but on land that was reclaimed, and there were internal collapses recorded in 1671 and 1701.
Eventually, in 1735, it was decided to rebuild it entirely after it was declared unsafe. During the excavations, the foundations of the first brick theatre (1662–1735) were found, extending throughout the existing building. This rectangular brick theatre fronted on to Essex Street West or Smock Alley, as it was known then, and measured at least 22m long (north–south) by 12m wide. Unfortunately, the brick theatre was comprehensively demolished in 1735 and only the foundations survived.
The second most significant finding of the excavation was the discovery of the complete plan of the rebuilt theatre (1735), which established that it was a horseshoe-shaped design with the seating ringing a stage, which projected almost the full length of the building. The massive stone structure exposed allows us to generate approximate measurements. The pit was probably 5m north–south by 9m (at widest) (54ft). The stalls were 9.5m in length, while the stage was probably 10m in length (north–south), projecting into the audience. Unfortunately, the details of the middle and upper galleries, along with the boxes, cannot be identified. The entire horseshoe-shaped structure was built almost independently of the standing building and was therefore not bonded in with the main building. As a result, it is almost impossible to trace the upper superstructure in the existing walls, apart from some infilled beam slots at the southern and northern end of the building. All that survives in the standing wall is a continuous offset at ground-floor level, which must have supported the floor tied into the horseshoe-shaped structure. In addition to this, the ventilation system, in the form of windows opes opening onto the passages on either side of the theatre, can now be directly related to the seating, as they correspond in length (north–south) to the position of the horseshoe structure. When the theatre was converted into a warehouse, it is highly likely that the main horseshoe-shaped structure was retained in this period, the middle and upper galleries becoming the timber lofts. Some of the blocking of the window and door opes also seems to have occurred in this phase.
As stated previously, most of the foundations have been preserved in situ beneath a temporary concrete floor, which allowed the Gaiety School of Acting to reopen the Smock Alley again in the summer of 2009. However, the full project involves the removal of the concrete first-floor level inserted in the 1990s and the restoration of the full auditorium space.
Reference
Simpson, L. 1996 Smock Alley Theatre: the evolution of a building. Temple Bar Properties, Dublin.


